︎
TARA BASSI
design, amongst other things
︎
Word Embeddings Analysis
NLP, AI/ML
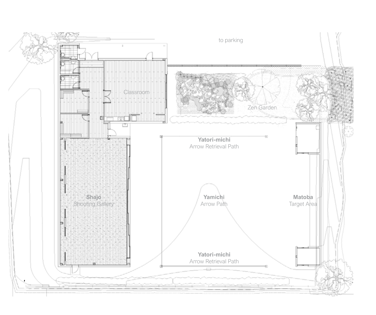
︎ Kyudojo
Architecture
︎ Pahoa 3D Printed Housing Development
Architecture
︎ Food For Profit
Urban Planning, Policy, UX
︎ Vancouver Youth Climate Leadership
UX, Program Design
︎ The Examined University
Urban Planning, Policy
︎ Self-Generating City
AI/ML, Architecture
︎ Neural Bodies
AI/ML, Architecture, Fashion
︎ Apple 3D Sets
Creative Direction, Architecture
︎ Found, Former, Future
Architecture
︎ Transparencies: Deconstructing Office Hierarchies
Architecture
︎Intermissions
Architecture
︎ Hidden Room
Architecture
︎ BayxBayxBay
Architecture
cafe of the week
info
Kyudo Facilty in a Nature Park
A Kyudojo (traditional Japanese archery facility) coming up in Honolulu, HI in Fall 2026
Overall Plan
Elevation
Project render, from a previous iteration